Fish Processing Plant Design And Layout Pdf at Design

Best design Tips and References website . Search anything about design Ideas in this website.

Fish Processing Plant Design And Layout Pdf. Cutlets, fish pickles and prawns pickle are prepared using canned fish/prawns. You will probably need advice.

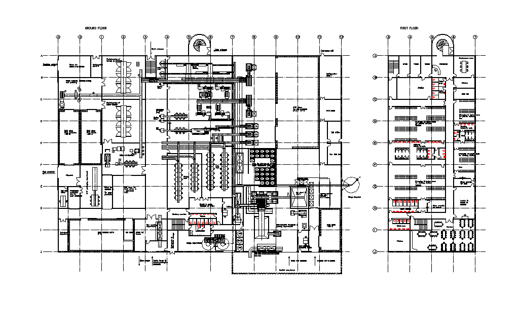
Fish Processing Plant Design and Structure and section
Fish Processing Plant Design and Structure and section from cadbull.com

At seafood processing plants, achieving the highest quality water standards is paramount, again to prevent contamination and to attain proper moisture to keep fish products in the proper conditions. • capacity the installed capacity of fish processing plant is 8 lakhs tin and bottles per year. 3.1.5 concept design of temporary market hall for atimonan fish port.

Fish Processing Plant Design and Structure and section

Starting and operating a village fish processing plant is not easy. Food processing plant design & layout language: Cutlets, fish pickles and prawns pickle are prepared using canned fish/prawns. Generally speaking, fish feed production process flow has several main steps, including procurement of feed ingredients, raw materials grinding, mixing, extruding, drying and automatic weighing and packaging, in tune with scientific and nutrient aquatic feed formulation.